Property Details

35 Boundary Road North, Euroa

35 Boundary Road North, Euroa

Sold! $795,000 - Acreage/Semi-Rural
5 Acres 3 Bedrooms2 Bathrooms Download Brochure

Enjoy your own retreat on the edge of the Euroa township, with this 5 acre lifestyle property with quality built 3 bedroom brick residence, set privately beyond native gardens and hedges.

A long driveway leads to the main residence that has been thoughtfully positioned to take advantage of North facing solar passive design.

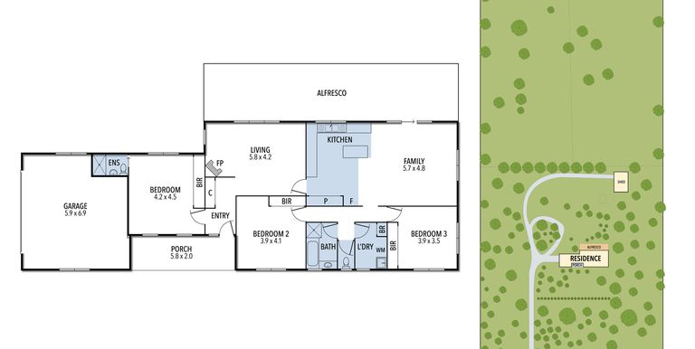
The floorplan consists of generous living areas that take in lovely views to tastefully landscaped has gardens surrounding the home. The formal living/dining has views to the garden from two vantages and a freestanding combustion wood heater for enjoying those winter nights by the fire. A second open family room incorporates a modern design kitchen with island preparation bench, modern electric oven ad stainless steel dishwasher. The lounge has split-system reverse cycle air-conditioning and sliding door access out to a very pleasant large alfresco space shaded by ornamental grape vines.
All 3 bedrooms are of good size and have built-in robes, with the larger master suite (4.2m x 4.5m) also having ensuite access and views to gardens to the North and South of the home. A covered verandah at the front of the home provides for undercover access to a lock-up brick garage.

The landscaped gardens have been zoned into a series of enjoyable spaces, showcasing a range of colourful shrubs, hedges, native plants and mature trees that provide canopy’s of shade and privacy. There are two fenced off grazing paddocks (each approx 1.1 acres in size) towards the back of the property with stock trough’s connected to the water supply, fruit orchard (Fig, Apricots, Peaches, Oranges and Lime) and good sized vegetable garden. The property has township water connected and 2 rainwater tanks.

Additional details: Open machinery shed (7.5m x 9m approx),12 panel solar to grid system, 5 acres (100.58m frontage x 201.17 depth), bitumen road frontage, Farming Zoned.

Agent comments: This property offers a very private semi-rural lifestyle, whilst still being close to all township amenities.

Contact Agent to organise your inspection!


 View Statement Of Information

Features

Property Map

Bryce Langsford

agent pic
  • Office : 0357 951444
  • Mobile : 0413384899

Warren Langsford

agent pic
  • Mobile : 0419529723

Contact


What is ?